lucia landscape
← Back to projects

Health center

Buenos Aires · building · 2023

Design and documentation of a neuro-rehabilitation clinic integrating nature and sensory experiences.

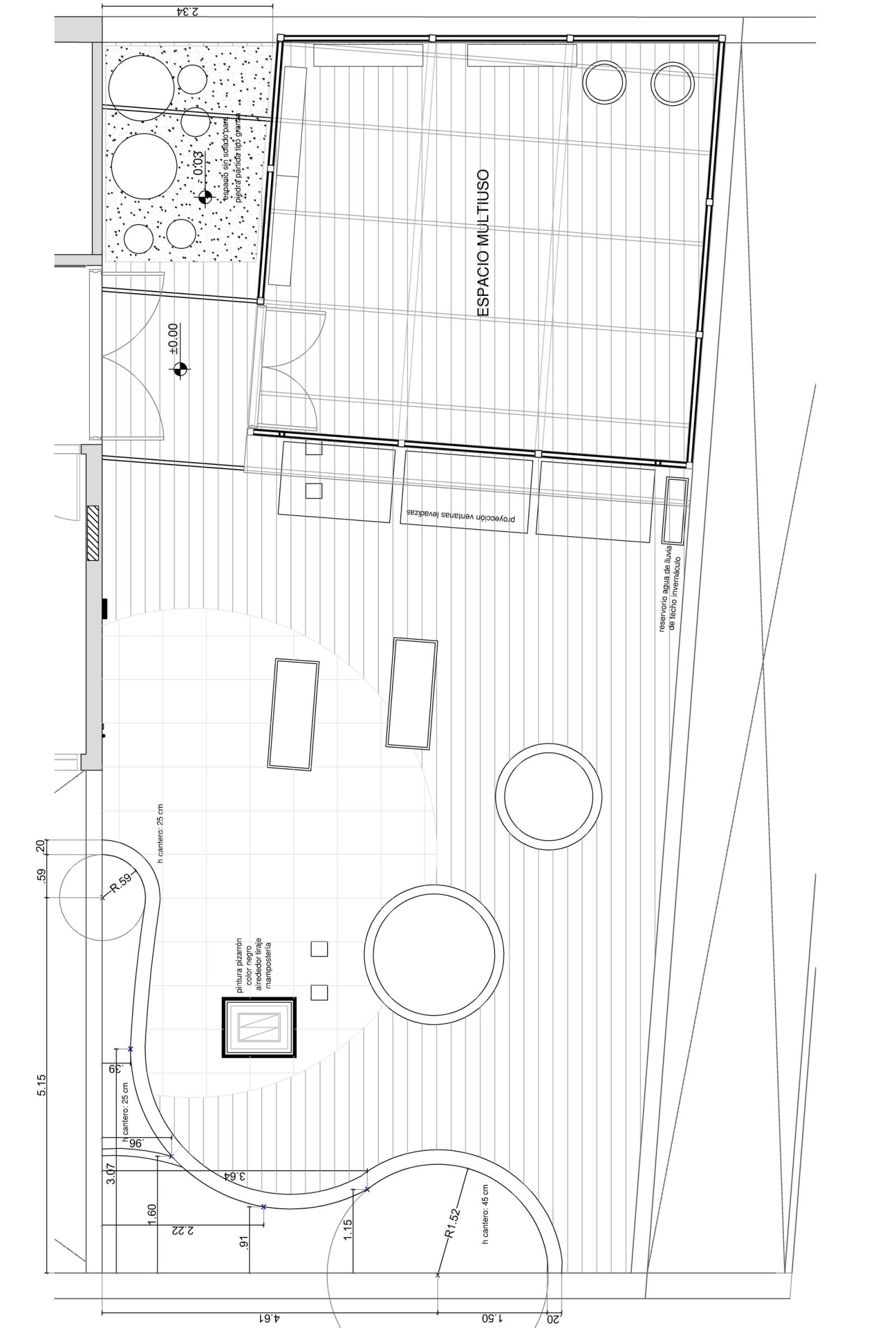
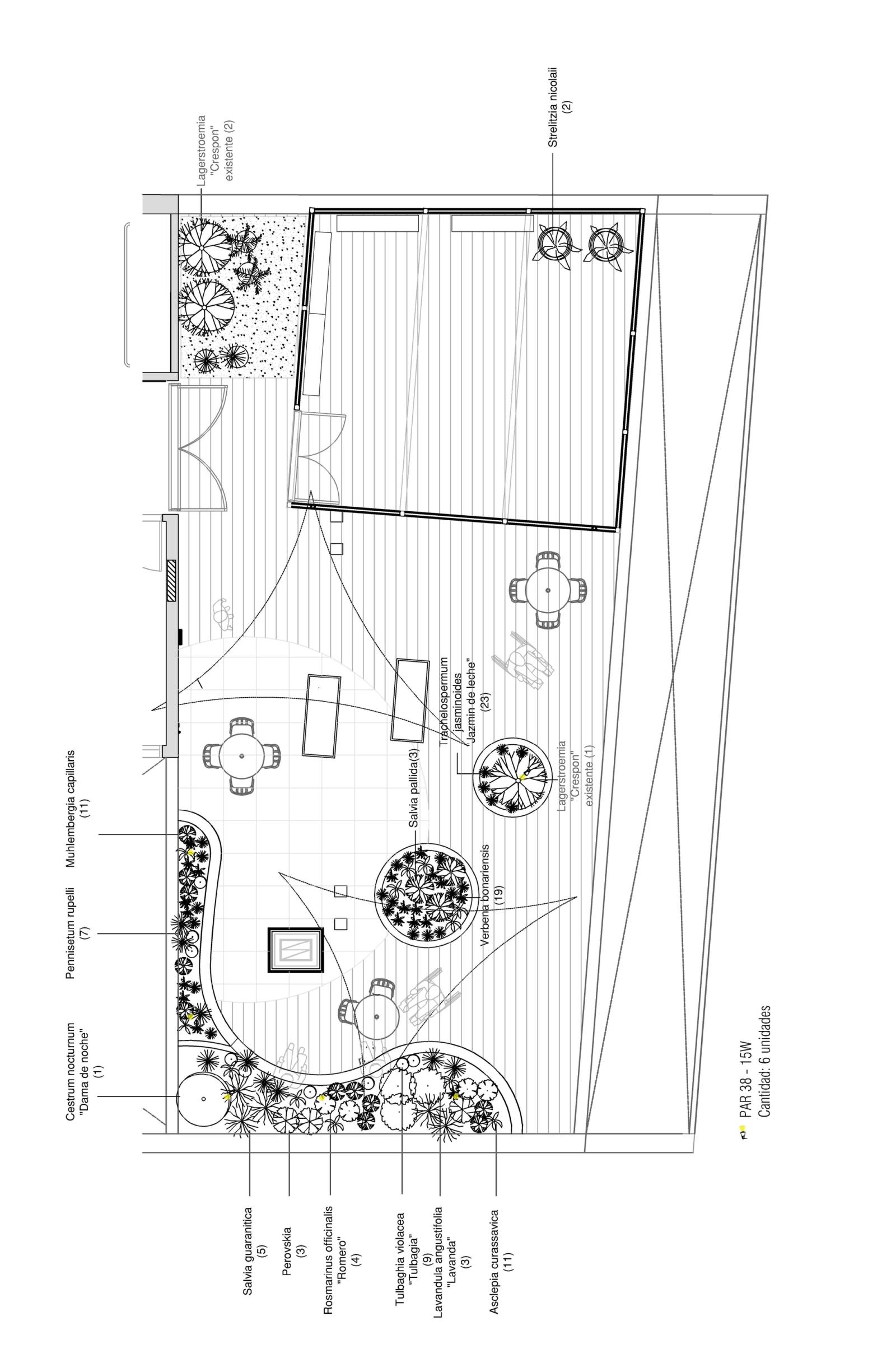
This project entails the design and documentation of a neuro-rehabilitation clinic in the city center, catering to patients of all ages undergoing mid- to long- term rehabilitation. Our design goal is to create a nurturing atmosphere that incorporates natural elements, engages the senses, and introduces new activities to support patients ' recovery journeys. This thoughtful integration aims to promote healing and enhance overall well-being throughout the rehabilitation process.

Health center
Health center
Health center
Health center
Health center
Health center
Health center
Health center
Health center
Health center
Health center